匠人匠心 至诚至精

为客户提供满意的仪器仪表产品

全国咨询电话:

+86 150-7907-3353

关于明升88

当前位置:首页 > 关于诚睿

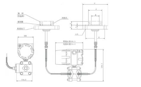
双法兰变送器

双法兰变送器由差压变送器,毛细管和带密封隔膜的双法兰组成。密封隔膜的作用是防止管道中的介质直接进入差压变送器,它与变送器之间是靠注满液体的毛细管连接起来的。当膜片受压后产生微小变形,变形位移或频率通过毛细管的液体传递给变送器,由变送器处理后转换成输出信号可用于测量液体、气体和蒸汽的流量,以及液位、密度和压力等。双法兰变送器在实际应用中比较广泛。

立即咨询:15079073353
产品介绍

双法兰变送器由差压变送器,毛细管和带密封隔膜的双法兰组成。密封隔膜的作用是防止管道中的介质直接进入差压变送器,它与变送器之间是靠注满液体的毛细管连接起来的。当膜片受压后产生微小变形,变形位移或频率通过毛细管的液体传递给变送器,由变送器处理后转换成输出信号可用于测量液体、气体和蒸汽的流量,以及液位、密度和压力等。双法兰变送器在实际应用中比较广泛。

1、双法兰液位变送器检查

①双法兰检查:检查双法兰与设备连接部分的密封是否良好;法兰与毛细管、毛细管与变送器的连接部分及毛细管本身是否有液体泄漏,泄露点在什么位置;法兰膜片有无变形、损伤、腐蚀、结垢等不良情况,仔细检查。

②变送器检查

a、变送器外观检查:检查变送器外壳有无损伤、腐蚀和其他故障。

b、变送器内部检查:打开变送器外盖,先检查密封圈有无损坏,如果损坏要及时更换;检查电路板及其他元器件是否良好。

c、检查变送器接线情况是否良好。

d.断开电源,卸下接线,进行绝缘电阻检查,用500V兆欧表检查变送器接线端子与外壳间的绝缘电阻是否正常,该电阻值应大于2OMΩ以上。

双法兰变送器11

2、双法兰液位变送器检修

①双法兰式差压变送器的检修周期一般为生产装置的一个运行周期。

②仪表与设备连接部位有排污孔的应拆开堵头进行吹扫(吹扫时应注意不要用蒸汽对着法兰膜片)。

③仪表与设备连接部位无排污孔的应拆开法兰进行吹扫。

④检查零部件有无腐蚀磨损、变形和渗漏,情况严重者应更换。

3、双法兰变送器常见故障与处理

故障现象:双法兰液位变送器无显示

故障原因:信号线脱落或电源故障

处理方法:重新接线或处理电源故障

故障现象:双法兰液位变送器显示为最大

故障原因:①低压侧、膜片、毛细管或封入液泄漏;②低压侧(高压侧)放空引压阀没有打开;③低压侧(高压侧)放空引压堵头。

处理方法:①更换仪表;②打开引压阀;③清理杂物或更换引压阀,检查堵塞部分,进行疏通。

故障现象:双法兰液位变送器显示偏大

故障原因:①低压侧(高压侧)放空堵头漏或引压阀没有打开;②仪表未校对,零点不准;

处理方法:①紧固放空堵头,打开引压阀;②重新校对仪表。

故障现象:双法兰液位变送器显示无变化

故障原因:①高低压侧膜片或毛细管同时损坏,正负压侧引压管堵塞;②电路板损坏。

处理方法:①更换仪表,疏通正负压侧引压管;②更换电路板。

4、综上所述:

双法兰变送器实质上是一种特殊取压的差压变送器。它是在差压变送器正,负室取压口上接上二条紫铜毛细管,末端是两个用不锈钢膜片封闭的、固定在安装法兰上的膜盒上。

膜盒与毛细管和差压变送器正、负压室,内部采用真空充填方法充硅油,而它们之间则用外套螺母、接管和接头紧密联接起来。这样在测量液位时,通过感压膜盒上的不锈钢波纹膜片感测的压力,由硅油传递至差压变送器的正、负压室,从而检测压力数值。以上就是双法兰变送器的详情介绍,更多产品内容详情请关注“压力变送器”栏目。

产品标签:
双法兰变送器
压力变送器
法兰变送器